Team Thompson Logo

4000 Trails Place Unit# 163, Peachland

Property Description

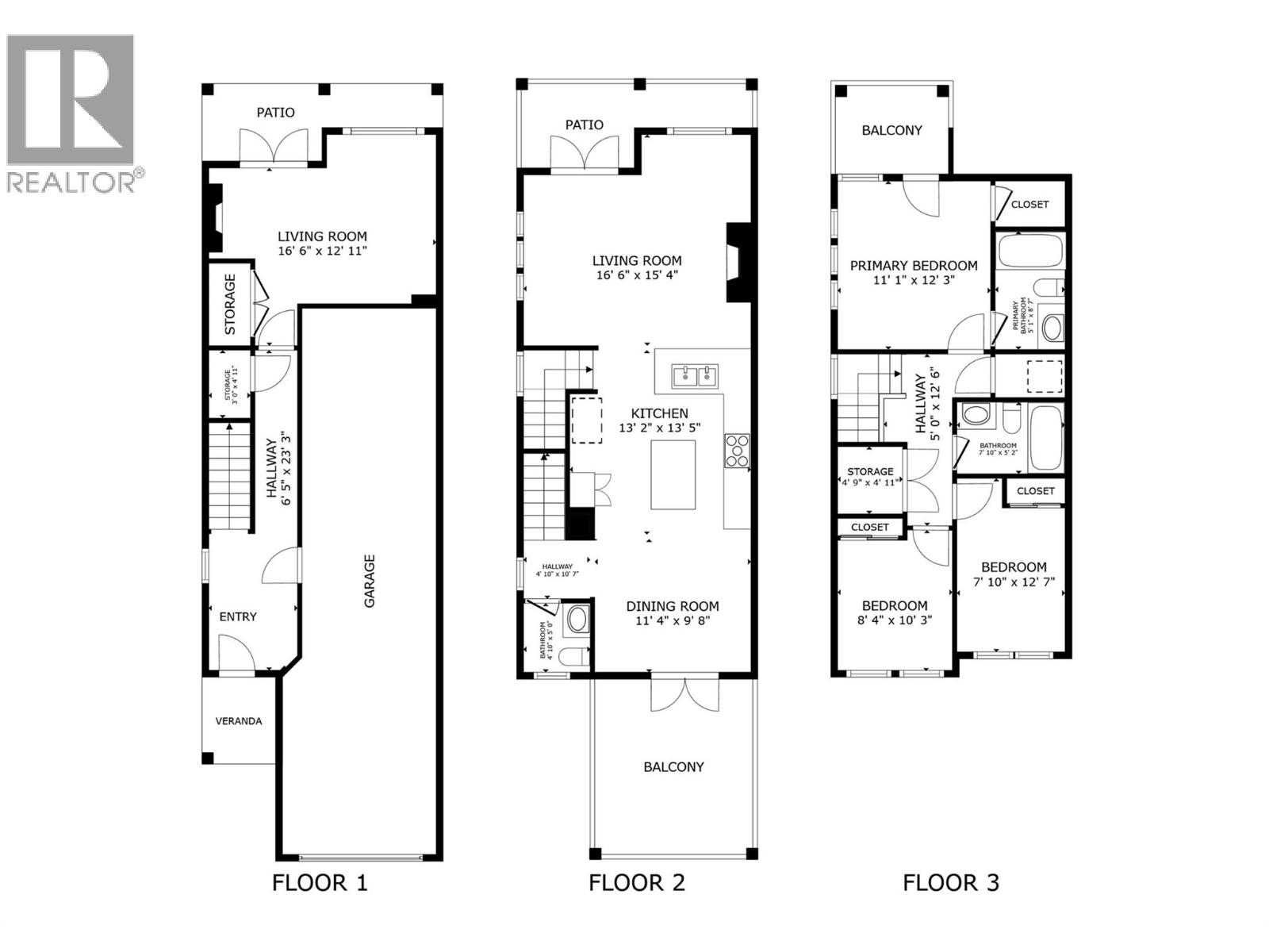
Welcome to The Trails! Backing onto Pincushion Mountain and steps from Hardy Falls and endless scenic trails, this location couples nature with convenience. An executive 9-hole golf course is approved next door, while Beach Avenue’s shops, restaurants, parks, marinas, wineries, and microbreweries are just minutes down the hill. This exceptional end unit presents like a show home. The craftsman exterior with Hardie board siding, rich wood and slate accents, and a stamped concrete entry sets the tone for the quality throughout. Inside, soaring ceilings and expansive windows flood the home with natural light, creating an open, airy atmosphere. The main living level is designed for entertaining, featuring a stunning white kitchen with upgraded cabinetry, quartz countertops, custom backsplash, premium appliances, and refined hardware. The living room is anchored by a cozy natural gas fireplace with a solid wood mantle and elegant shiplap detail. Two inviting covered decks on this level offer private views from both sides of the home. Upstairs offers 3 generous bedrooms and 2 full bathrooms, including a serene primary retreat with vaulted ceilings and transom windows. On the entry level, a large rec room with a 2nd fireplace opens directly to the patio — ideal for guests or seamless indoor-outdoor living. Phantom screens throughout, an oversized tandem garage with abundant storage for all your lifestyle gear, and the peace of mind of a FireSmart community. (id:47466)

Share this Listing:

Full Address:
4000 Trails Place Unit# 163, Peachland, British Columbia
Price:
$ 774,900
MLS Number:
10376965
List Date:
February 27th, 2026
Neighbourhood:
Peachland
Year Built:
2020
Taxes:
$ 4,089

Property Details

Bedrooms:
3
Bathrooms:
3
Air Conditioning:
Central air conditioning
Heating:
Forced air

Interior Features

Storeys:
3
Sewer:
Municipal sewage system
Water:
Municipal water
Garage:
Attached Garage
Garage Spaces:
2
Ownership Type:
Condo/Strata
Taxes:
$ 4,089
Stata Fees:
$ 343

Building Features

Finished Area:
1565 sq.ft.

Floors

Land

Neighbourhood Features

Ratings

Commercial Info

powered by Ratehub.ca

Mortgage Calculator

Get Directions

Contact Team Thompson

Steve Thompson
This field is for validation purposes and should be left unchanged.
Name(Required)
Agent: Maureen YakimchukOffice: Sotheby's International Realty Canada

The trademarks MLS®, Multiple Listing Service® and the associated logos are owned by The Canadian Real Estate Association (CREA) and identify the quality of services provided by real estate professionals who are members of CREA" MLS®, REALTOR®, and the associated logos are trademarks of The Canadian Real Estate Association. This website is operated by a brokerage or salesperson who is a member of The Canadian Real Estate Association. The information contained on this site is based in whole or in part on information that is provided by members of The Canadian Real Estate Association, who are responsible for its accuracy. CREA reproduces and distributes this information as a service for its members and assumes no responsibility for its accuracy The listing content on this website is protected by copyright and other laws, and is intended solely for the private, non-commercial use by individuals. Any other reproduction, distribution or use of the content, in whole or in part, is specifically forbidden. The prohibited uses include commercial use, “screen scraping”, “database scraping”, and any other activity intended to collect, store, reorganize or manipulate data on the pages produced by or displayed on this website.

Multiple Listing Service (MLS) trademark® The MLS® mark and associated logos identify professional services rendered by REALTOR® members of CREA to effect the purchase, sale and lease of real estate as part of a cooperative selling system. ©2017 The Canadian Real Estate Association. All rights reserved. The trademarks REALTOR®, REALTORS® and the REALTOR® logo are controlled by CREA and identify real estate professionals who are members of CREA.

Similar Listings

Contact Team Thompson

We are here to help

This field is for validation purposes and should be left unchanged.
Name(Required)

Helpful Links

crossmenuchevron-down